Recuperator de caldura Reventon Inspiro BASIC 1000
Capacitate: 1000m3/h
+ Panou de control
Conținutul pachetului:
-Recuperator de caldura
-Instrucțiuni de utilizare
-panou de control de bază
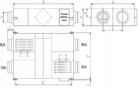
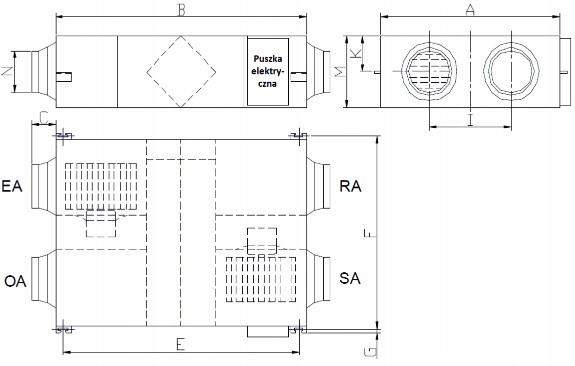
Unitate de tratare a aerului:
Recuperatoarele entalpice sunt concepute pentru sistemele de ventilație ca o componentă modernă pentru recuperarea energiei (căldură și umiditate). Aceste unități sunt responsabile de înlocuirea constantă a aerului uzat cu aer proaspăt. Acestea sunt concepute pentru ventilarea clădirilor rezidențiale, precum și a halei, depozitelor, spațiilor comerciale, serviciilor sau atelierelor. Recuperarea energiei permite o reducere semnificativă a costurilor de exploatare a clădirii.
BENEFICII PRINCIPALE:
- schimbător de entalpie (umidificare / uscare suplimentară a aerului de intrare; fără condens -> nu este nevoie de un sistem de drenaj al condensului și risc minim de îngheț),
- ventilatoare de curent alternativ cu 3 viteze (alimentarea și evacuarea funcționează simultan)Pre-filtre G3 care protejează schimbătorul de murdărirea rapidă (comparativ cu recuperatoarele standard - fără filtru F9 și presostat asociat),
- comunicare BMS, bypass manual și indicarea contaminării filtrului (în funcție de orele lucrate),
- panou de control elegant inclus.
MODELE DISPONIBILE:
200m3/h
300m3/h
400m3/h
600m3/h
800m3h
1000m3h
1300m3h
Toate recuperatoarele noastre îndeplinesc cerințele programului de finanțare "Aer curat" pentru 2023














