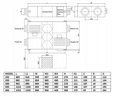
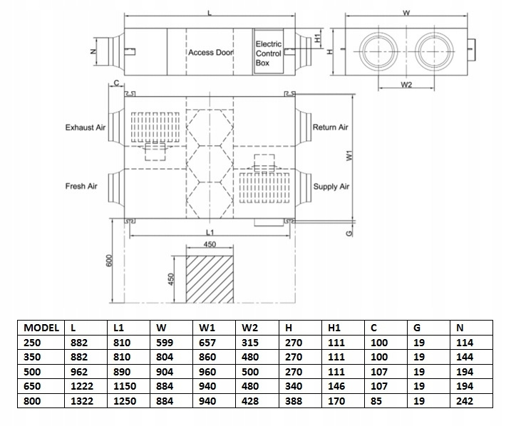
Recuperator de caldura de entalpie, unitate de tratare a aerului 650m3/h
Reventon Inspiro 650
+ Panou de control inteligent.
Recuperator - dispozitiv utilizat în sistemele de ventilație pentru recuperarea (recuperarea) căldurii și umidității din aerul evacuat dintr-o clădire sau instalație industrială. Recuperarea energiei reduce costurile de operare ale clădirii.
Schimbătorul de entalpie permite recuperarea simultană a căldurii și umidității din aerul extras. Principala diferență dintre un schimbător de entalpie și un schimbător standard este utilizarea unei membrane de celuloză selectivă, permeabilă la vapori, în locul aripioarelor metalice utilizate în mod standard.
Principalele caracteristici ale ventilatorului de recuperare a energiei din seria DMTH:
- Motor BLDC cu economie de energie, control cu 10 viteze
- Recuperare entalpică de înaltă eficiență, climat ambiant mai confortabil
- Filtru G3 + F9, eficiență de peste 96% pentru filtrarea particulelor de la 2,5 µm la 10 µm
- Sistem de control inteligent disponibil, funcție opțională de control al CO 2 și al umidității, control extern și control BMS
- Alarmă cu filtru dublu sau alarmă cu temporizator disponibilă
- Bypass automat controlat de temperatura externă
BENEFICII
- schimb de aer uzat cu aer proaspăt
- recuperatorul cu ventilație cu recuperare de energie este conform cu ERP 2018
- motor BLDC integrat cu economisire de energie
- două tipuri de pre-filtru G3 și fin F9
- schimbător de căldură entalpică foarte eficient
- recuperarea umidității
- fără condens
- presostat care indică filtre murdare
- pot fi conectate senzorul de CO₂ și/sau senzorul de umiditate
Soluție ideală de ventilație pentru apartamente, case, precum și clădiri comerciale.












